Idi na sadržaj

Tip 68 - G&G gradnja Ivanjica - montažne kuće

G&G gradnja Ivanjica - Tvoje mesto za montažne kuće !
Skip menu
G&G gradnja Ivanjica
Sivčina bb
32 250 Ivanjica, Srbija
+381 65 2414 134
+381 64 4676 084
milorad.gavrilovic980@gmail.com
Skip menu
Montažna kuća Tip 68
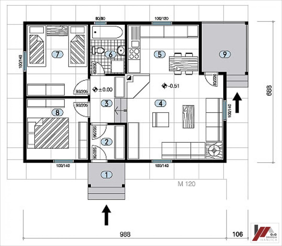
Raspored prostorija
Red. br. Prostorija Površina (m2)
1Ulaz3,82
2Vetrobran3,06
3Predsoblje3,85
4Dnevni boravak19,32
5Kuhinja8,40
6Kupatilo4,08
7Dečija soba10,50
8Spavaća soba9,00
9Terasa6,11
Neto površina 68,14
Bruto površina 76,35
Cena montažnih kuća varira u zavisnosti od nekoliko faktora, kao što su stepen izgrađenosti - da li birate samo "sivu fazu" ili želite da dobijete kuću "ključ u ruke". Takođe, važno je obratiti pažnju na nivo izolacije spoljašnjih zidova, vreme montaže na terenu, kao i udaljenost od našeg skladišta do vašeg gradilišta. Ne brinite, preciznu cenu svake montažne kuće dobićete unapred, čim preciziramo sve detalje. Naša ekipa je tu da vam pomogne da dobijete najbolju ponudu i da vaša nova kuća postane stvarnost!
Nazad na sadržaj